Die angebotenen Flächen befinden sich in einem gepflegten Wohn- und Geschäftshaus in zentraler Lage rund um den Frauenlobplatz in Mainz. Das Gebäude wurde kontinuierlich instand gehalten und regelmäßig an den aktuellen Stand der Technik angepasst.
Im Erdgeschoss des Hauses sind unter anderem ein Friseursalon sowie ein Bankinstitut angesiedelt. Darüber hinaus befinden sich weitere Praxis- und Büroeinheiten im Gebäude, wodurch ein attraktiver und ausgewogener Nutzermix entsteht.
Die Mietflächen in den oberen Etagen sind komfortabel über einen zusätzlichen Aufzug erreichbar. Für Mieter und Besucher stehen außerdem Tiefgaragenstellplätze mit direktem Zugang zum Gebäude zur Verfügung.
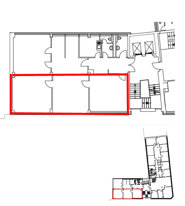
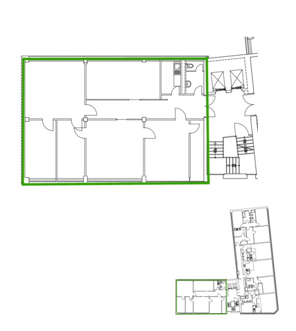
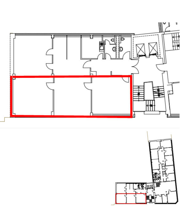
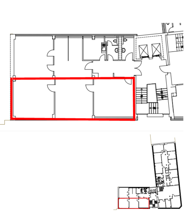
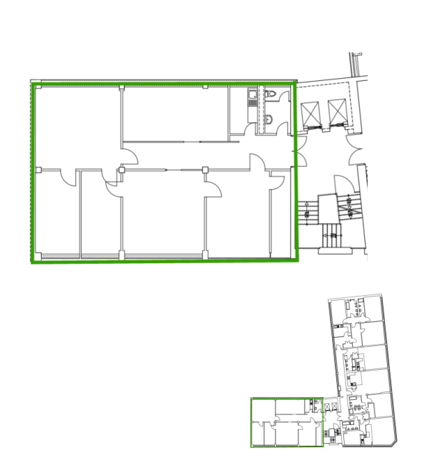
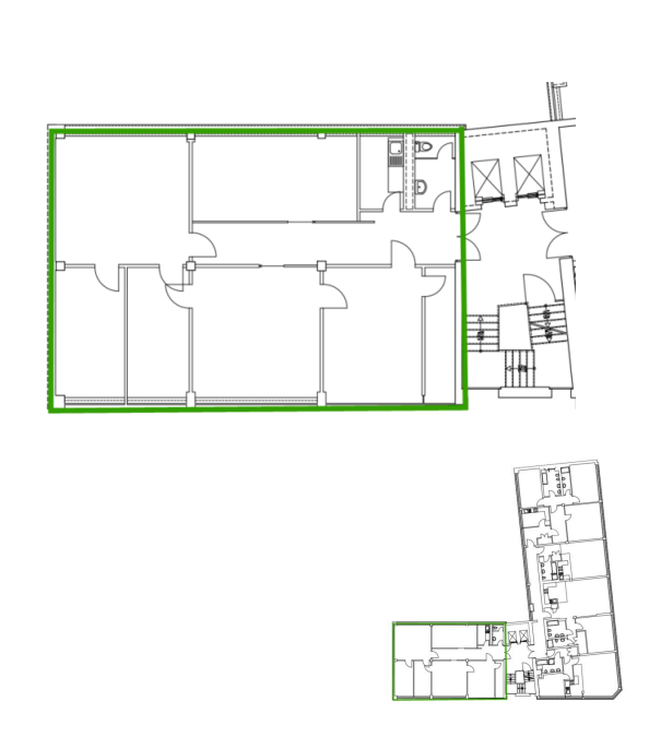
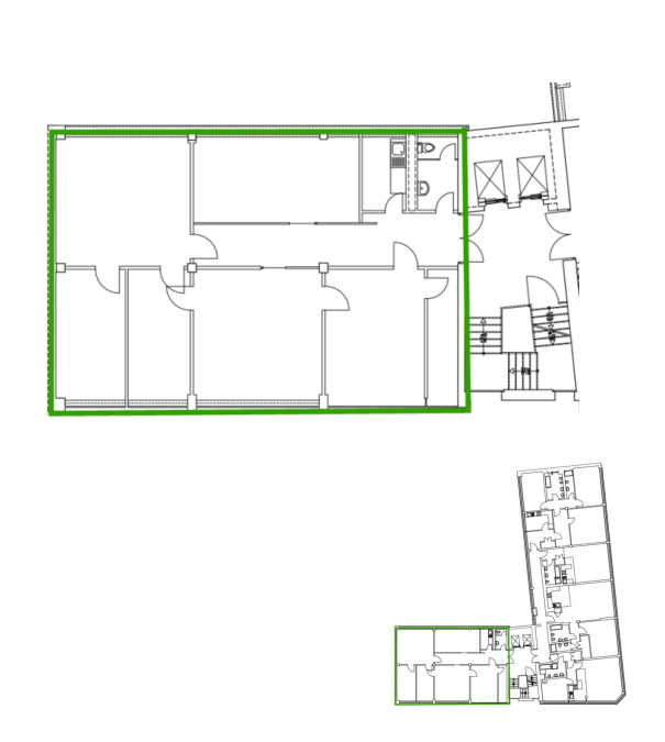
Die 108m² Flächen befinden sich im 1.OG und sind nur zu Untermiete gedacht.
Besichtigungstermine können wir auf Wunsch sehr flexibel vereinbaren.
Ihre Vorteile auf einen Blick:
- Provisionsfreie Anmietung
- Direkte Anmietung vom Eigentümer
- Sehr attraktives Preis-Leistungs-Verhältnis
- Persönliche Betreuung bei allen Fragen rund um Ihre Mietfläche
WICHTIG:
Übergabe der Fläche modernisiert inklusive neuer Küchenzeile












