Vielen Dank für Ihr Besuch auf unserer Seite!
Wir bieten Ihnen tolle, renovierte und moderne Büroflächen im "Atrium Office" in der Hilpertstraße in Darmstadt an.
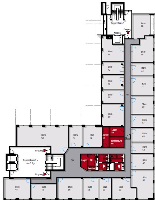
Flächenübersicht:
- 🏢 Büroflächen:
- 902 m² (ME1), Büro im 3. OG, 11,50 €/m², 3,50 € Nebenkosten, sofort verfügbar
- 771 m² (ME2), Büro im 3. OG, 11,50 €/m², 3,50 € Nebenkosten, sofort verfügbar
- 861 m² (ME1), Büro im 4. OG, 11,50 €/m², 3,50 € Nebenkosten, sofort verfügbar
- 868 m² (ME2), Büro im 4. OG, 11,50 €/m², 3,50 € Nebenkosten, sofort verfügbar
- 1.145 m² (ME3) inkl. Terrasse, Büro im 4. OG, 11,50 €/m², 3,50 € Nebenkosten, sofort verfügbar
- 🚗 Tiefgaragen-Stellplätze:
- 136 Stk. TG-Stellplätze, 70,00 €/Stpl., sofort verfügbar
Die Flächen sind sofort verfügbar und bieten vielfältige Nutzungsmöglichkeiten!
Sie können sehr flexibel einer der oben genannten Flächen aussuchen und wir lösen Ihr Bürogesuch.
Verschiedene Raumkonzepte können individuell gestaltet werden und wir unterstützen Sie gerne bei der Ideenfindung und gehen auf Ihre Bedürfnisse ein. Von agilen Konzepten wie Design Thinking und Desk Sharing über Homeoffice und Co-Working bis hin zum angenehmen Work-Life-Blending, das sich viele Mitarbeiter heute wünschen.
Eine hohe Aufenthaltsqualität und offene Raumplanung sorgen für effiziente Prozesse und einen motivierenden Teamspirit. Unser Angebot wird genau diesem Anspruch gerecht: Hier finden Unternehmen ein ideales Umfeld für die Arbeitswelten von morgen, einen spannungsgeladenen Platz für kreatives und produktives Arbeiten in einer Atmosphäre zum Wohlfühlen.











