*Provisionsfrei* Moderne Büroräume in TOP Lage in Darmstadt

Mietpreis/m² 12,50 €

Grundinformationen

Standort
64293 Darmstadt
Etage
1
Nebenkosten
3,50 €
Mietpreis/m²
12,50 €
Provisionspflichtig
Ja
Mieterprovision
Provisionsfrei
Provisionshinweis
Der Mieter zahlt an die vermittelnde Gesellschaft keine Provision!
Kautions Hinweis
3 Nettomonatsmieten
Objekttyp
Bürofläche
Nutzungstyp
Gewerbe
Verfügbarkeit
Verfügbar
Vermarktungstyp
Miete

Objektbeschreibung

Das Bürohaus wurde im Jahre 2003 fertiggestellt und verfügt über eine
außergewöhnliche Lobby mit lichtdurchflutetem überdachtem Atrium, einen
großen begrünten Innenhof und zahlreichen Tiefgaragenstellplätzen.

Ausstattung

• 2,75 bis 3,50 m lichte Höhe der Büroräume
• Klimaanlage durch Kompressionskältemaschinen (Primärkühlung) +
Betonkernaktivierung (Sekundärkühlung)
• Öffenbare und doppelt verglaste Fenster
• Außenliegender elektrischer Sonnenschutz
• Zugangskontrollsystem über Chipkarten
• Hohlraumböden für die Verkabelung
• Große Terrasse im EG ca. 130 Quadratmeter
• Ca. 400 Quadratmeter Lager-/Kellerflächen

Objekteigenschaften

Flächen

Standort
64293 Darmstadt
Etage
1
Bürofläche
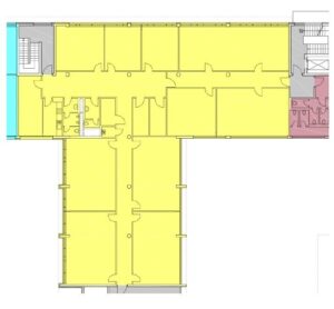
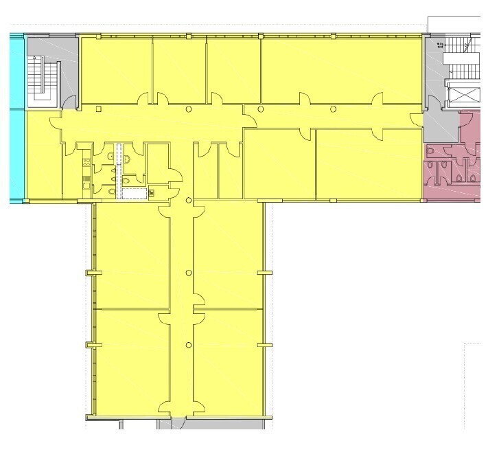
ca. 685 m²
Anzahl Stellplätze
122

Ausstattung

Stellplatz
Ja
Klimatisiert
Ja
Personenaufzug
Ja
Tiefgaragenstellplatz
Ja
Parken im Freien
Ja
Barrierefrei
Ja

Energie & Heizung

EnergieausweisVerfügbar
Erstellt am12.09.2013
Endenergiebedarf Strom45 kWh/(m²·a)
Endenergiebedarf Wärme82 kWh/(m²·a)

Objekt & Status

Objekttyp
Bürofläche
Nutzungstyp
Gewerbe
Verfügbarkeit
Verfügbar
Vermarktungstyp
Miete

Lage

Darmstadt ist bekannt für seine Zukunftstechnologie, Forschung und Wissenschaft. Das Europahaus befindet sich mit seiner Lage inmitten dieses Geschehens. Direkte Nähe zum Hauptbahnhof macht diesen Standort zusätzlich attraktiv. In unmittelbarer Nähe des Objekts befinden sich sowohl ein B&B- als auch ein Maritim Hotel. Fußläufig sind über den Bahnhof verschiedene Nahversorgungsmöglichkeiten und zudem die Anschlüsse an Bus,- S-Bahn und Straßenbahn zu erreichen. Von hier aus ist u.a. der „Luisenplatz“ (Innenstadt) als auch die Innenstadt von Frankfurt schnell zu erreichen. Über die B26 gelangt man innerhalb von wenigen Minuten an das „Darmstädter Kreuz“ mit den Autobahnen A672 /A5 und A67. Der Flughafen ist ca. 20 min entfernt.

Weitere Beschreibung

+ Provisionsfrei
+ Sie mieten direkt vom Eigentümer
+ Preisgünstige Mieten/ Gutes Preis-Leistungs-Verhältnis
+ direkte Betreuung bei allen Fragen rund um Ihre Räume
+ Auf Wunsch können wir flexibel besichtigen

Die Objektangaben wurden nach bestem Wissen und Gewissen erstellt. Grundlage der vorstehenden Angaben sind Informationen und/oder Unterlagen, welche uns seitens des Eigentümers oder Dritter zur Verfügung gestellt worden sind. Eine Gewähr für die Richtigkeit der Angaben kann daher nicht übernommen werden. Irrtum und Zwischenverkauf sind vorbehalten. Es gelten unsere Allgemeinen Geschäftsbedingungen.